4524 Pippin Ln, Lakewood Ranch, Florida
- MLS #: A4653888
- Price: $475,000
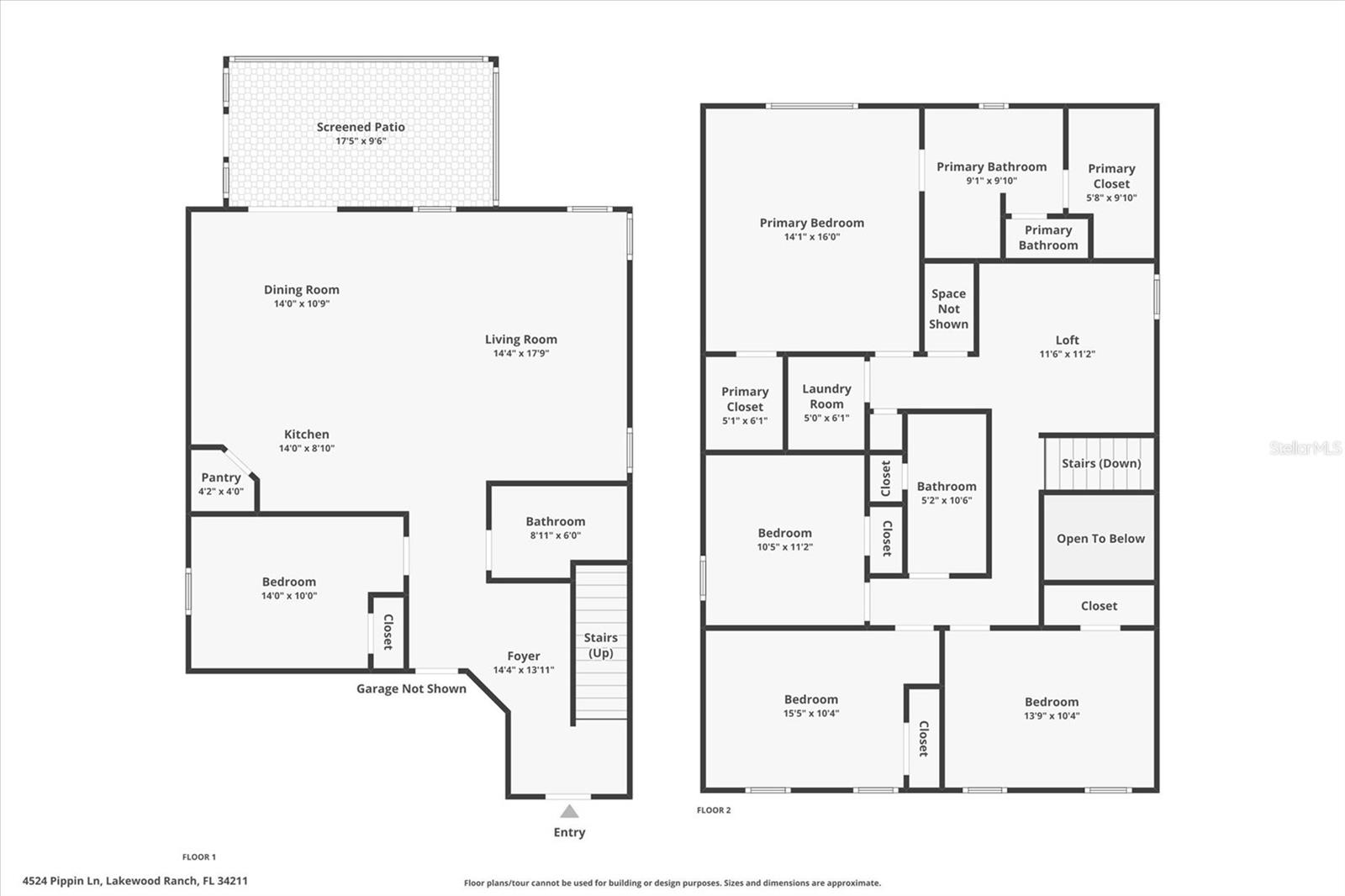
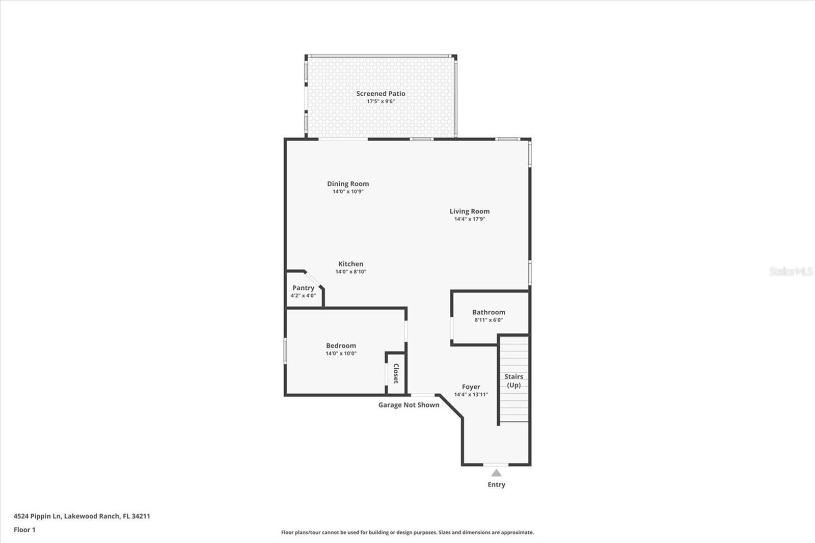
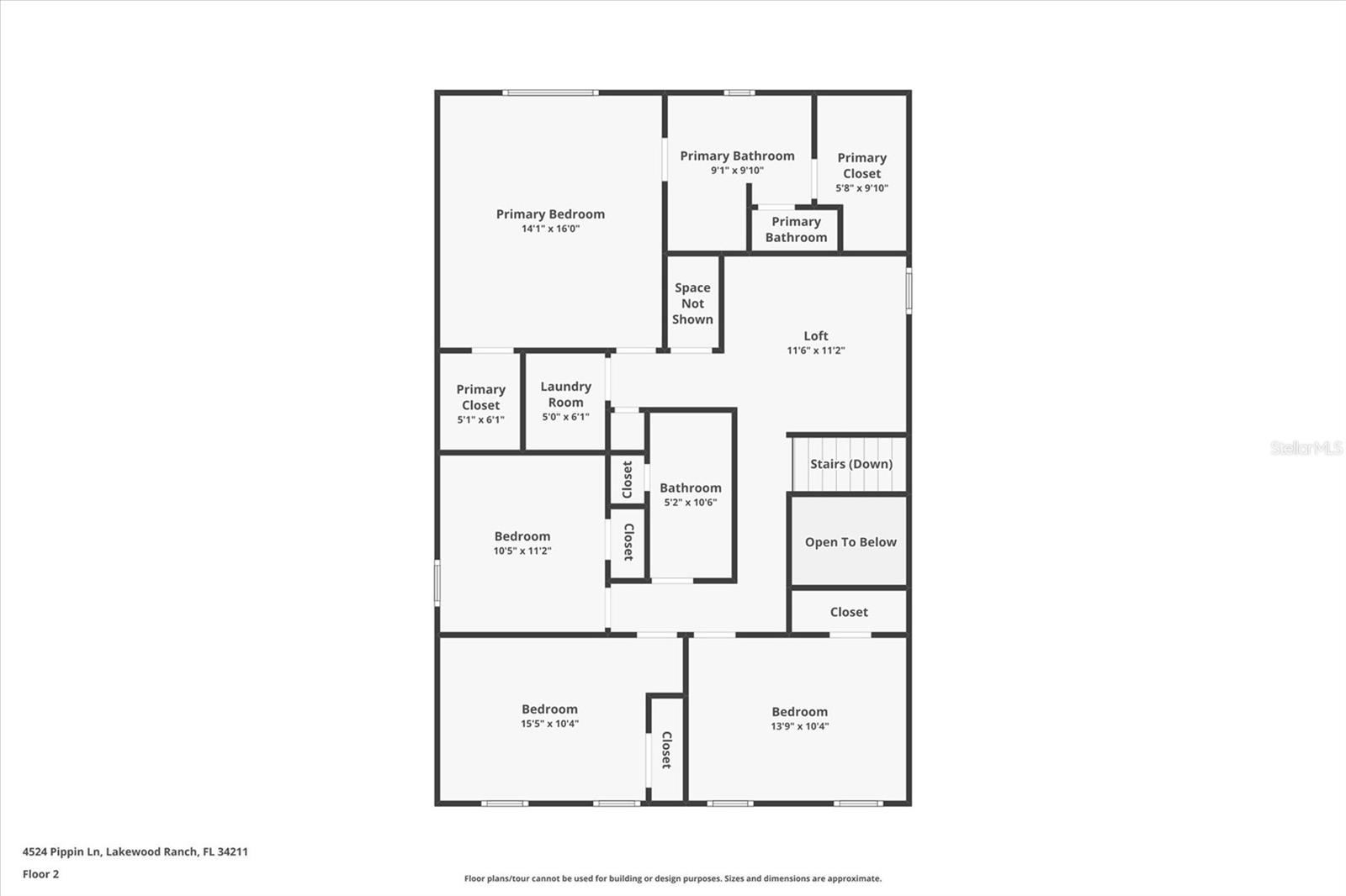
- Beds: 5
- Baths: 3
- Square Feet: 2370
- City: LAKEWOOD RANCH
- Zip Code: 34211
- Subdivision: AVALON WOODS
- Garage: 2
- Year Built: 2025
- HOA Fee: $56
- Payments Due: Monthly
- Status: Pending
- DOM: 209 days
- Water View: Pond
- Lot Size: 0 to less than 1/4
Listing Tools
Kevin Kiernan
508.930.0562Share Listing
Property Description
Under contract-accepting backup offers. One or more photo(s) has been virtually staged. Welcome to Avalon Woods, where luxury and comfort combine to create your dream home! Step into the exquisite, brand-new Windemere model by Ryan Homes, filled with high-end upgrades and waiting for you to call it home. As you walk through the spacious foyer, you'll be captivated by the expansive living area, complete with stunning lake views that will take your breath away. For those who love to cook, the kitchen is a chef's dream, showcasing quartz countertops, a chic tile backsplash, an oversized island with under-cabinet lighting, and ample cabinet space, plus a generous pantry designed for both style and functionality. Envision yourself unwinding in your peaceful lanai, where panoramic screens allow you to enjoy the serene sights of a tranquil pond and a picturesque nature preserve. With the added convenience of a first-floor bedroom and a full bath--featuring elegant quartz countertops, ceramic tile, and a luxurious walk-in shower--this home is designed for your comfort and convenience. Ascend to the second floor to find a versatile loft space that can be tailored to fit your lifestyle--transform it into a game room or a cozy second living area. The owner's retreat is a true sanctuary, complete with double closets and a lavish ensuite bath that offers dual sinks, quartz countertops, ceramic tile, and a spacious walk-in shower. Additionally, with three more well-appointed bedrooms upstairs and a third full bath with double sinks and a tub/shower combination, there's ample room for family and guests. You'll also appreciate the attached two-car garage, featuring a new epoxy floor backed by an impressive 20-year warranty! Experience the joy of a new home without the burden of unexpected costs or long waiting periods. Is this the dream home you've been searching for? Schedule your showing today and make it yours before it's gone!
Listing Information Request
-
Miscellaneous Info
- Subdivision: Avalon Woods
- Annual Taxes: $606
- Annual CDD Fee: $465
- HOA Fee: $56
- HOA Payments Due: Monthly
- Water View: Pond
- Lot Size: 0 to less than 1/4
-
Schools
- Elementary: Gullett Elementary
- High School: Lakewood Ranch High
-
Home Features
- Appliances: Built-In Oven, Cooktop, Dishwasher, Disposal, Dryer, Electric Water Heater, Microwave, Range, Refrigerator, Washer
- Flooring: Carpet, Ceramic Tile, Luxury Vinyl
- Air Conditioning: Central Air
- Exterior: Hurricane Shutters, Rain Gutters, Sprinkler Metered
- Garage Features: Driveway, Garage Door Opener
Listing data source: MFRMLS - IDX information is provided exclusively for consumers’ personal, non-commercial use, that it may not be used for any purpose other than to identify prospective properties consumers may be interested in purchasing, and that the data is deemed reliable but is not guaranteed accurate by the MLS.
Thanks to HOUSE MATCH for this listing.
Last Updated: 12-14-2025









































