7768 Fairway Woods Dr, Sarasota, Florida
- MLS #: A4668745
- Price: $487,500
- Beds: 2
- Baths: 2
- Square Feet: 1956
- City: SARASOTA
- Zip Code: 34238
- Subdivision: FAIRWAY WOODS
- Garage: 2
- Year Built: 1985
- Status: Active
- DOM: 50 days
- Water View: Lake, Pond
Listing Tools
Kevin Kiernan
508.930.0562Share Listing
Property Description
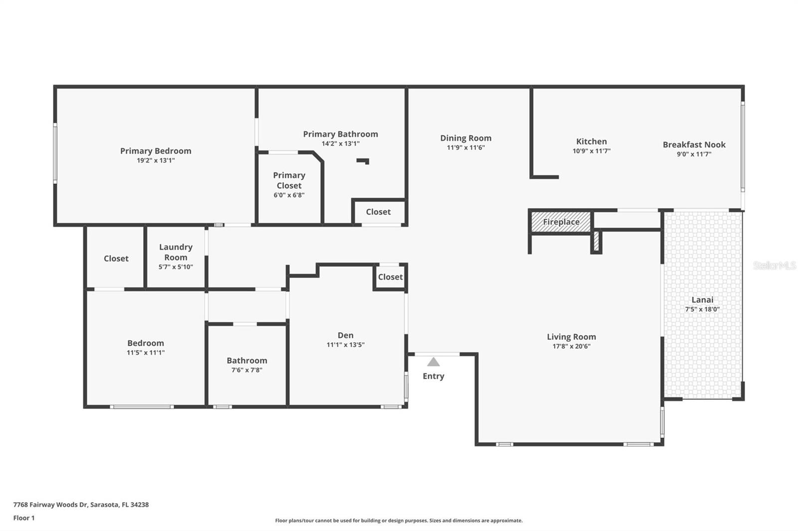
Paradise found! Prepare to be enchanted! Nestled in a private enclave, Fairway Woods is 5 miles to Siesta Key Beach, ranked the #1 Beach in the U.S. and #4 in the world in 2025 by Tripadvisor. From the moment you pass through the gates of Fairway Woods, you are met by majestic old growth trees. As you step inside this remarkable unit you are greeted by soaring ceilings, a spectacular vista, & award-winning architecture. With over $100,000 in upgrades, this home exudes elegance. Pride of ownership abounds, with no attention to detail spared. As a bonus, the Seller is offering a lucky Buyer nearly $11,000 to cover a year of HOA payments. Awash in natural light, this home "wows" with floor-to-ceiling sliders, a wet bar & wood burning fireplace. Move-in ready, this 2nd story corner unit boasts over 1,950 sq ft of living space, with 2 beds, a den that's fully functional as a 3rd bedroom, 2 full baths, a screened-in lanai, and a detached 2 car garage. Wake up as the dappling morning sun glistens through your bedroom window. Make your way to the living area where you are greeted by an uninterrupted vista of the serene, lushly manicured wooded area outside your expansive, private lanai. The formal dining area is ideal for an evening of entertaining. The brand-new kitchen is a chef's dream, with stone countertops, new appliances, large pantry, & solid wood cabinetry. A breakfast nook overlooks the verdant landscape, surrounding you in nature. The stately primary bedroom, with its new ensuite bath features a luxurious soaking tub, oversized walk-in shower, dual vanities, & a large walk-in closet. The cozy 2nd bedroom features a walk-in closet & pocket door creating a private retreat for your guests. The office/den has French doors & great natural light, and the in-unit laundry room w/new washer & dryer offers convenience. The home, completely re-piped in 2016, is equipped with a new Rheem A/C & water heater, new lighting, newer flooring, & a 70" Samsung smart TV, adding to the appeal & value of this distinctive property. Nature lovers, sports enthusiasts, and patrons of the arts have the best of Sarasota at their fingertips- In addition to the top-rated TPC golf course nearby, you will find an abundance of outdoor activities including waterfront dining, boating, biking, hiking & fishing. The Legacy Trail, Marie Selby Botanical Gardens, Oscar Scherer State Park & the YMCA are all nearby & within easy reach. Easy access to the interstate and state-of-the-art medical facilities, pet friendly Fairway Woods is a 20-minute drive to Downtown Sarasota's Bayfront, with its world-class shopping, dining, & cultural events. The home is under 5 miles from Pine View, consistently ranked as one of the top ten schools in the United States. Costco, Lowes, Publix & Target are under 2 miles away, and a new Trader Joe's & Whole Foods are in the works. The HOA covers exterior and roof maintenance, landscaping, gated entry, and community amenities including a heated pool and hot tub, and an outdoor kitchen and grilling station, which are available for private parties. Morning strolls are a delight, as you meander among the 26 beautifully landscaped acres with a dedicated conservation area. Varied activities and enrichment classes such as Yoga, Tai Chi, Water Aerobics, Mah Jong & a monthly Book Club are offered. Community gatherings, including concerts and cocktail soirees are held regularly. Come, relax and rejuvenate. Surround yourself in serenity. Paradise is yours!
Listing Information Request
-
Miscellaneous Info
- Subdivision: Fairway Woods
- Annual Taxes: $4,082
- Water View: Lake, Pond
-
Schools
- Elementary: Gulf Gate Elementary
- High School: Riverview High
-
Home Features
- Appliances: Dishwasher, Disposal, Dryer, Electric Water Heater, Range, Range Hood, Refrigerator, Washer
- Flooring: Ceramic Tile, Luxury Vinyl
- Fireplace: Living Room, Wood Burning
- Air Conditioning: Central Air
- Exterior: Sliding Doors
- Garage Features: Driveway, Garage Door Opener, Ground Level, Tandem
Listing data source: MFRMLS - IDX information is provided exclusively for consumers’ personal, non-commercial use, that it may not be used for any purpose other than to identify prospective properties consumers may be interested in purchasing, and that the data is deemed reliable but is not guaranteed accurate by the MLS.
Thanks to MICHAEL SAUNDERS & COMPANY for this listing.
Last Updated: 12-06-2025





































































































