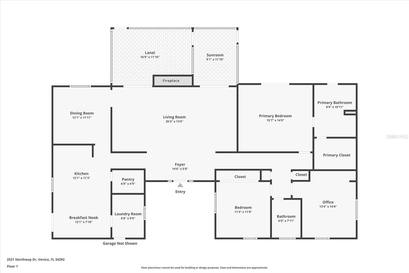
2521 Northway Dr, Venice, Florida
- MLS #: D6144349
- Price: $625,000
- Beds: 3
- Baths: 2
- Square Feet: 1880
- City: VENICE
- Zip Code: 34292
- Subdivision: VENICE ACRES
- Garage: 2
- Year Built: 1982
- HOA Fee: $565
- Payments Due: Annually
- Status: Pending
- DOM: 59 days
- Lot Size: 1 to less than 2
Listing Tools
Kevin Kiernan
508.930.0562Share Listing
Property Description
One or more photo(s) has been virtually staged. This stunning ranch-style home, set back on over 1.3 acres in the highly sought-after neighborhood of Venice Acres, is perfect for families and pet lovers alike. The property is fenced and ready for you to move in with all your toys and even your horses, and is excellent for nature lovers! The exterior of the home is beautifully landscaped with mature trees, bright flower beds, and a paver brick entry. The roof was replaced in 2023, and the A/C is newer; most windows have hurricane impact for added peace of mind. The kitchen features granite counters with a brand-new quartz counter on the island, a large walk-in pantry, a breakfast nook, and French doors leading to a cozy paver patio. Step inside to a sunken living room with stunning beamed cathedral ceilings and a wood-burning fireplace. French doors open to a glassed-in sunroom and a screened lanai overlooking the sparkling pool, and a fenced pasture leads to a 2-stall barn with a tack room. The home also features a separate dining room, three bedrooms, two bathrooms, a two-car garage, and a laundry room with ample storage space. Updates include new luxury vinyl plank flooring and Travertine, a marble entryway, light fixtures, a new vanity in the guest bath, and countertops in the master bath. The master suite boasts a walk-in closet and plenty of space for relaxation. Great location is close to Beaches, Restaurants, Shopping, Wellen Park, and Hospitals. Please schedule your appointment today to view this beautiful home surrounded by nature and make it your own!
Listing Information Request
-
Miscellaneous Info
- Subdivision: Venice Acres
- Annual Taxes: $2,599
- HOA Fee: $565
- HOA Payments Due: Annually
- Lot Size: 1 to less than 2
-
Schools
- Elementary: Garden Elementary
- High School: Venice Senior High
-
Home Features
- Appliances: Dishwasher, Dryer, Microwave, Range, Range Hood, Refrigerator, Washer
- Flooring: Luxury Vinyl, Marble, Travertine
- Fireplace: Living Room, Wood Burning
- Air Conditioning: Central Air
- Exterior: Garden, Rain Gutters, Sliding Doors
Listing data source: MFRMLS - IDX information is provided exclusively for consumers’ personal, non-commercial use, that it may not be used for any purpose other than to identify prospective properties consumers may be interested in purchasing, and that the data is deemed reliable but is not guaranteed accurate by the MLS.
Thanks to MICHAEL SAUNDERS & COMPANY for this listing.
Last Updated: 12-14-2025






















































